NSMH KÖŞE OFİS
Kuzguncuk/İstanbul ︎ 1994 ︎ İnşaat alanı: 180 m2 ︎ Arazi alanı: 60 m2 ︎ Ofis ︎ Nevzat Sayın,Tülay Atabey, Serhat Sönmez
 
 

 
 
 
 
 
 
 
 
 
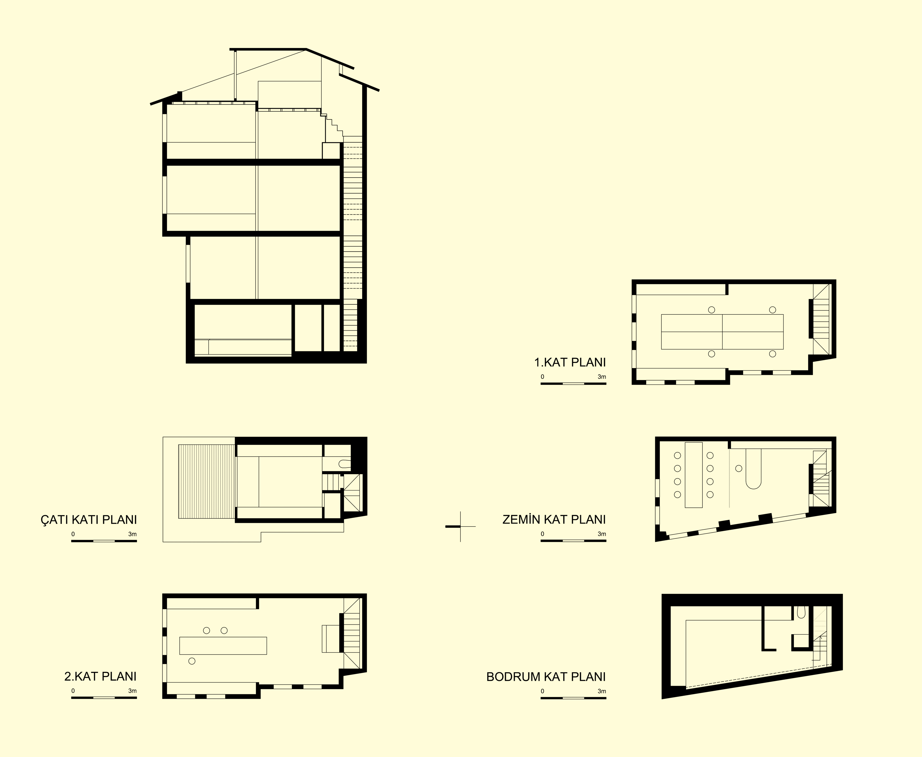
Yüz yaşında ahşap bir binanın kendi çalışma mekanımız olarak seçilip, çalışma biçimimize uygun olarak dönüştürülmesi, işveren ve mimarın aynı olması durumunun bir örneği. Bizden önce varolan geleneksel çevrenin içinde benzerleriyle bir arada olan ve bu bir aradılıkla kazanılmış bir ruhu olan yapıyı kendimiz için ele alırken en önemli verilerden biri, sahip olduğu ruhun sürmesini sağlamak oldu. Yüz yıl önce yapıldığı gibi yaptık. Aynı teknolojiyi ve hemen hemen aynı malzemeleri kullandık. İç mekânları ise çalışma biçimimize bağlı olarak ele aldık. Yüz yüze konuşarak, tartışarak çalışma alışkanlığımızın mekânlarını oluşturduk. sınırlı bir büyüklük içinde yeterli ve istediğimiz gibi mekânlara sahip olduk.