︎
Nevzat Sayın Mimarlık Hizmetleri
︎
Duyurular
Projeler
Medya
NSMH
İletişim
EN
︎︎︎Arşiv [
test
]
︎︎︎
Seçilmiş İşler
Tipolojik
Dini
Eğitim
Endüstri
Karma Kullanım
Kamu
Kentsel Tasarım
Konaklama
Konut
Konut Yerleşkesi
Kültür
Ofis
Rekreasyon
Sergi
Ticari
Kronolojik
2020—10
2010—00
2000—90
<1990
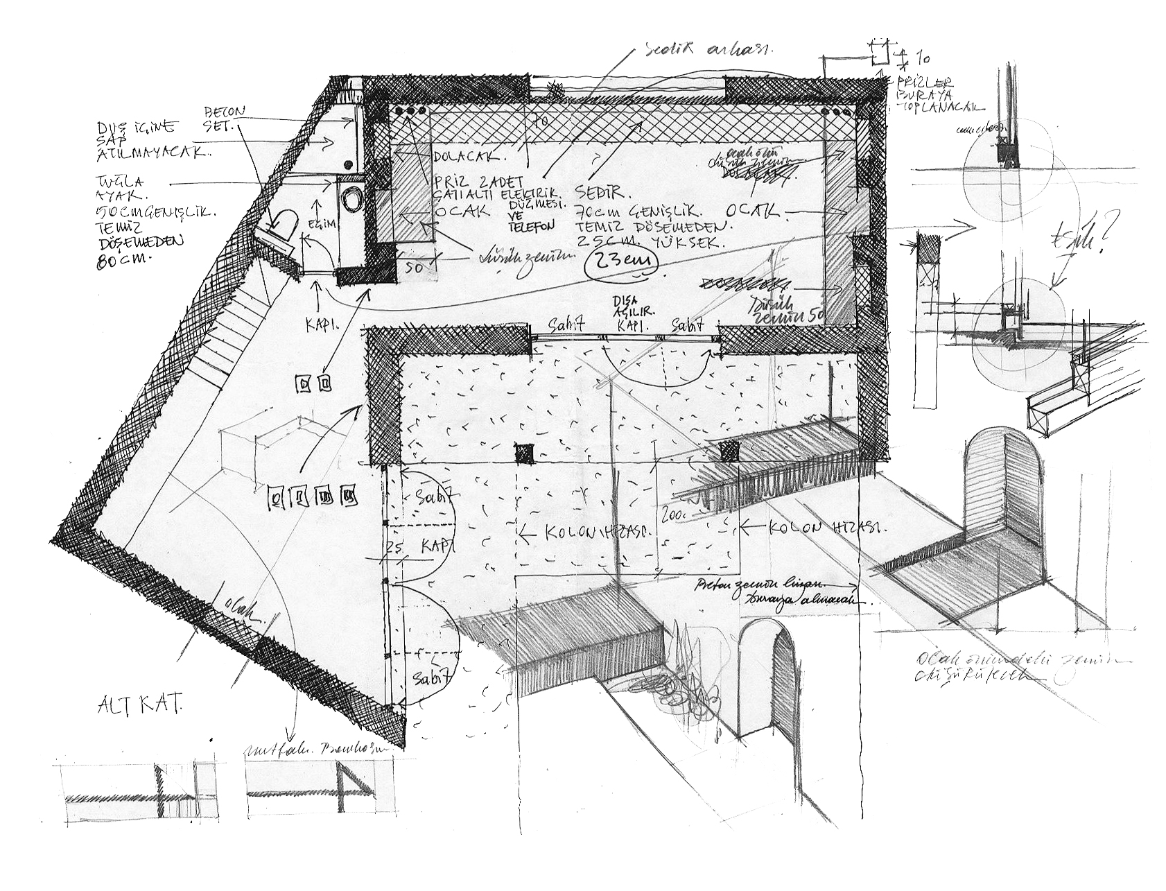
YAHŞİBEY’DE 3. EV
Dikili/İzmir ︎ 1998 ︎ İnşaat alanı: 155 m
2
︎ Arazi alanı: 200 m
2
︎ Konut ︎ Elvan Uluutku, Nevzat Sayın
Ahmet Doğu İpek’in 2011 yılında yaptığı rölyef
︎Önceki Proje
Sonraki Proje︎