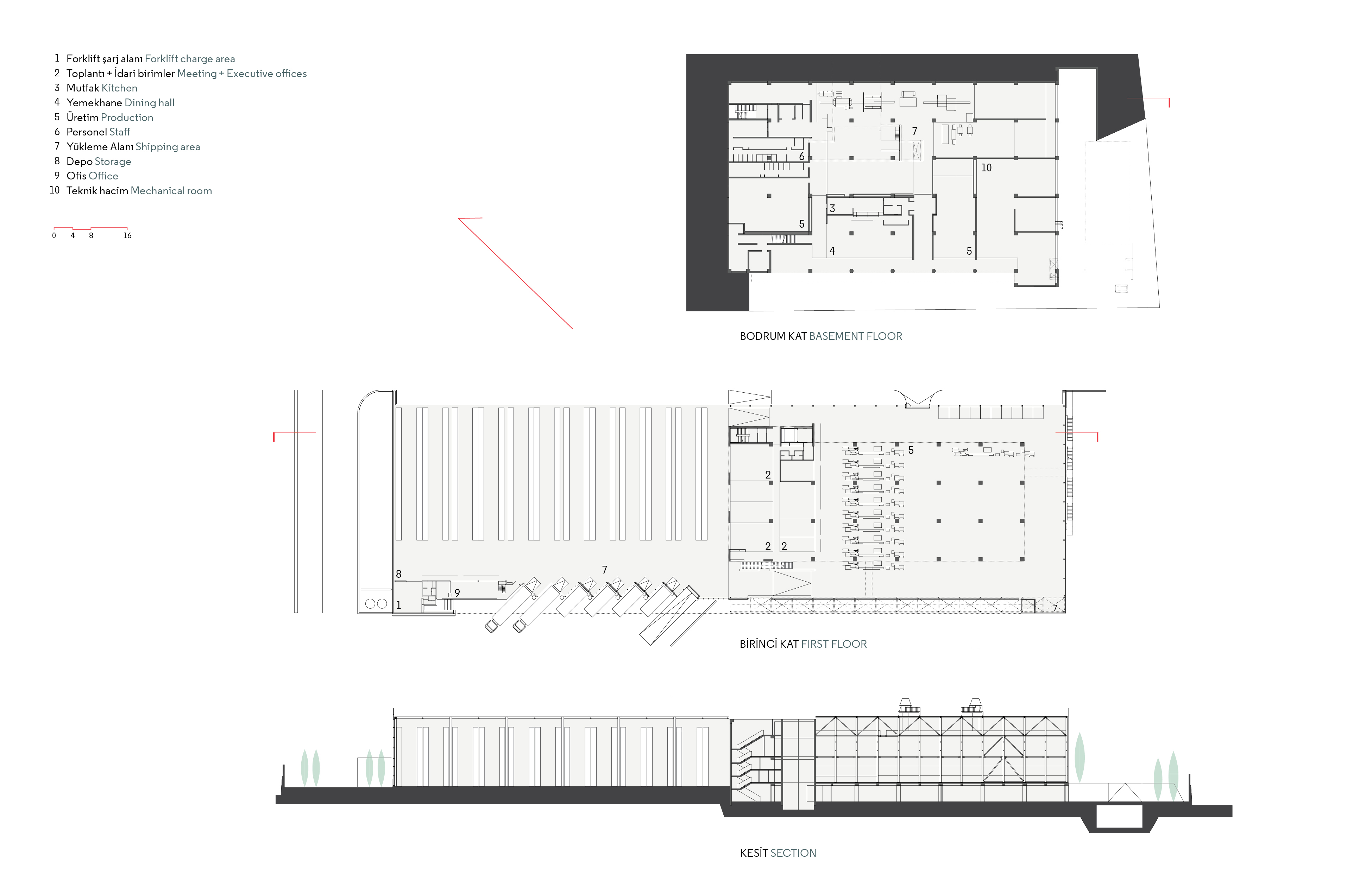
GASKET FACTORY
Gebze/Kocaeli︎ 2007 ︎ Construction Area: 43.000 m2 ︎ Site: 9.200 m2 ︎ Industrial
︎ Bahar Ünlü, Ebru Tabak, İbrahim Eyüp, Mert Eyiler, Nevzat Sayın, Onur Eroğuz
![]()
Gebze/Kocaeli︎ 2007 ︎ Construction Area: 43.000 m2 ︎ Site: 9.200 m2 ︎ Industrial
︎ Bahar Ünlü, Ebru Tabak, İbrahim Eyüp, Mert Eyiler, Nevzat Sayın, Onur Eroğuz







Eighteen years ago, the structures of Pulver and Elastron, located to the north, along with a new building matching the total dimensions of the two structures and the space between them, largely completed the Pulver campus. The building consists of storage in the western section, operational areas in the eastern section, and offices and laboratories in the middle. Each unit has the potential to expand northward, and it is anticipated that this extension will be made in a few years. However, another building we began on a different plot for the same institution seems to determine not only the future extension of this building but also how it will be used.
The importance of considering the potential for industrial buildings to change functions and expand during the design phase is clearly evident in this campus.